


Floor plan
タテカエ間取りの事例

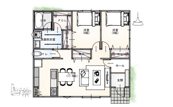
Before
子供とくらしていた2階建ての暮らし。
洗濯物ひとつ干すにも、1階からLDKを抜け、2階の洋室を通ってようやくバルコニーへ──
家事のたびに家中を行ったり来たりしていました。

After
洗濯動線が遠くて家の中を何度も往復していた以前の暮らし。建て替えてからは、「洗う・干す・しまう」が一か所で完結。
家事がラクになるだけで、気持ちにも余裕ができる間取りへと進化しました。
PICK UP
タテカエ相談会見どころ
Point01
「寒い家」が
「エアコン1台で快適」に

「冬は廊下が冷蔵庫のよう」「エアコンをつけても部屋が寒い」──
そんな暮らしが、建て替え後はエアコン1台で家じゅうがぽかぽか。断熱性能が上がるとここまで違うのかと実感できる、体験談と実例をご紹介します。ります
Point02
「動きづらさ」が
「家事ラク動線」に

洗濯物を持って階段を上がり、部屋を通って干す──
以前は当たり前だった“家の中の遠回り”がゼロに。建て替えで実現できた「洗う・干す・しまうが数歩で完結」する間取りを体感いただけます。
Point03
「使わない部屋」が
「今の暮らしにフィット」

2階の空き部屋や、物置になった和室…。
今の暮らしに合わなくなった間取りは、管理も掃除も手間に感じることも。
相談会では、そんな広すぎる住まいを“夫婦2人にちょうどいいサイズ感”へ整えた事例をご紹介します。建て替えによって暮らしがぐっと軽くなり、気持ちにもゆとりが生まれたという声も多く届いています。
Recommend
タテカエ相談会におすすめな方
築30年以上の家にお住まいで、
冬の寒さや夏の暑さに悩んでいる方
家事動線にストレスを感じている
奥さま・ご夫婦
子どもが巣立ち、夫婦2人の暮らしを
“ちょうどよく”整えたい方
これからの老後を“安全・快適に”
暮らすための住まいを考えたい方
Campaign
参加限定キャンペーン

Amazonギフト3,000円プレゼント
EVENT INFO
イベント概要

イベント
タテカエ相談会
日程
7/1(火)〜7/31(木)
時間
10:00〜17:00
会場
伊勢市ショールーム or 松坂ハウジングセンター
COMPANY
会社情報

会社名 | 株式会社下村住建 |
---|---|
所在地 | 三重県伊勢市小俣町明野1234 |
営業時間 | 10:00〜17:00 |
定休日 | 水曜日 |